Neue Feuer- und Rettungswache
Digitale Ausstellung des Architekturwettbewerbs
Der Architekturwettbewerb für die neue Feuer- und Rettungswache an der Nordlandwehr ist abgeschlossen. Das Preisgericht bewertete am 23. Mai die eingereichten Arbeiten. Alle Entwürfe können auf dieser Seite digital abgerufen und eingesehen werden. Sie werden ab 31. Mai der Öffentlichkeit auch im Zuge einer Ausstellung im einsA präsentiert.
Das Sach- und Fach-Preisgericht bestand aus insgesamt elf stimmberechtigten Mitgliedern sowie acht Stellvertreterinnen und Stellvertretern. Die Sachpreisrichter waren neben Carsten Hövekamp (Bürgermeister Stadt Dülmen) und Ulrich Helmich (Sicherheitsdezernent des Kreises Coesfeld) Dülmens Stadtbaurat Markus Mönter, Feuerwehr-Chef Hubert Sommer sowie Michael Kuhmann, stellvertretender Vorsitzender des städtischen Bauausschusses. Als Fachpreisrichterinnen und -richter fungierten Architektinnen und Architekten aus ganz NRW. Die Organisation des Wettbewerbs führte das Büro „post welters + partner“ aus Dortmund im Auftrag von Kreis und Stadt durch.
Ergebnisse des Wettbewerbs
-
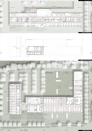
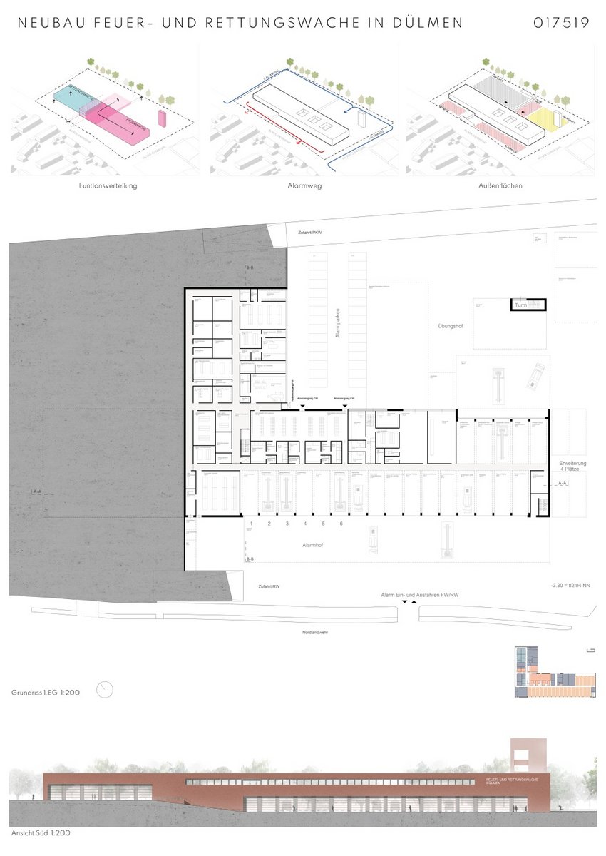
1. Preis: tr Architekten Tilicke + Rössing
1. Preis: tr Architekten Tilicke + Rössing
-
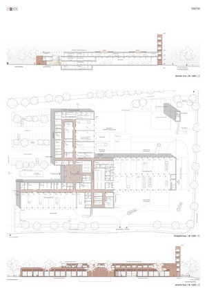
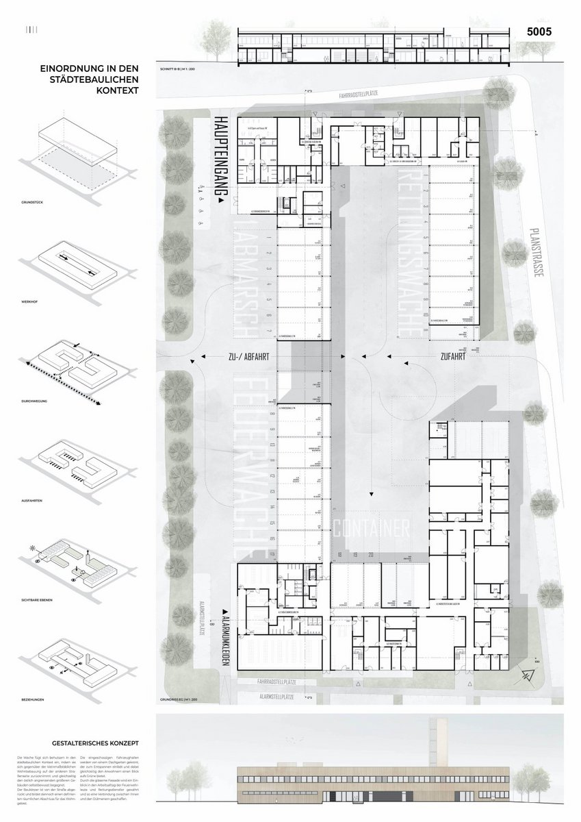
2. Preis: JSWD Architekten GmbH & Co. KG
2. Preis: JSWD Architekten GmbH & Co. KG
-
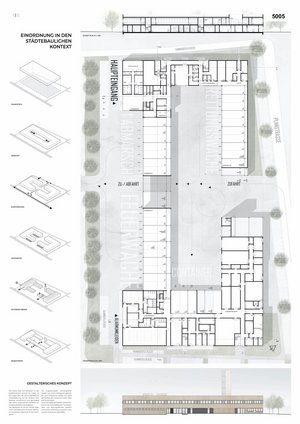
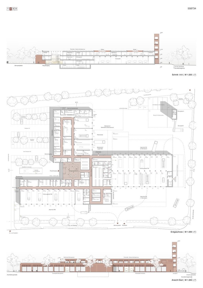
3. Preis: pbr Hamburg
3. Preis: pbr Hamburg
-
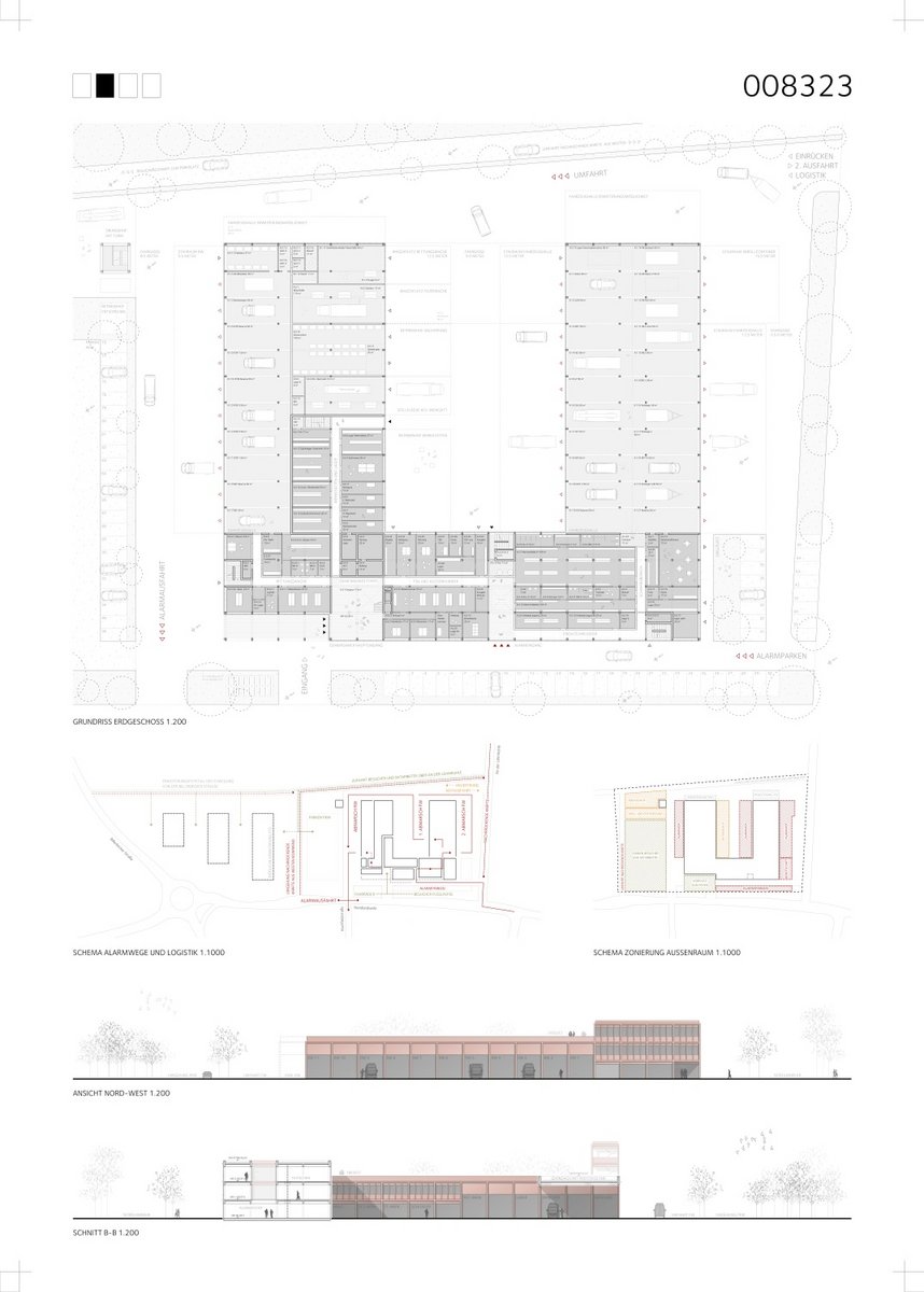
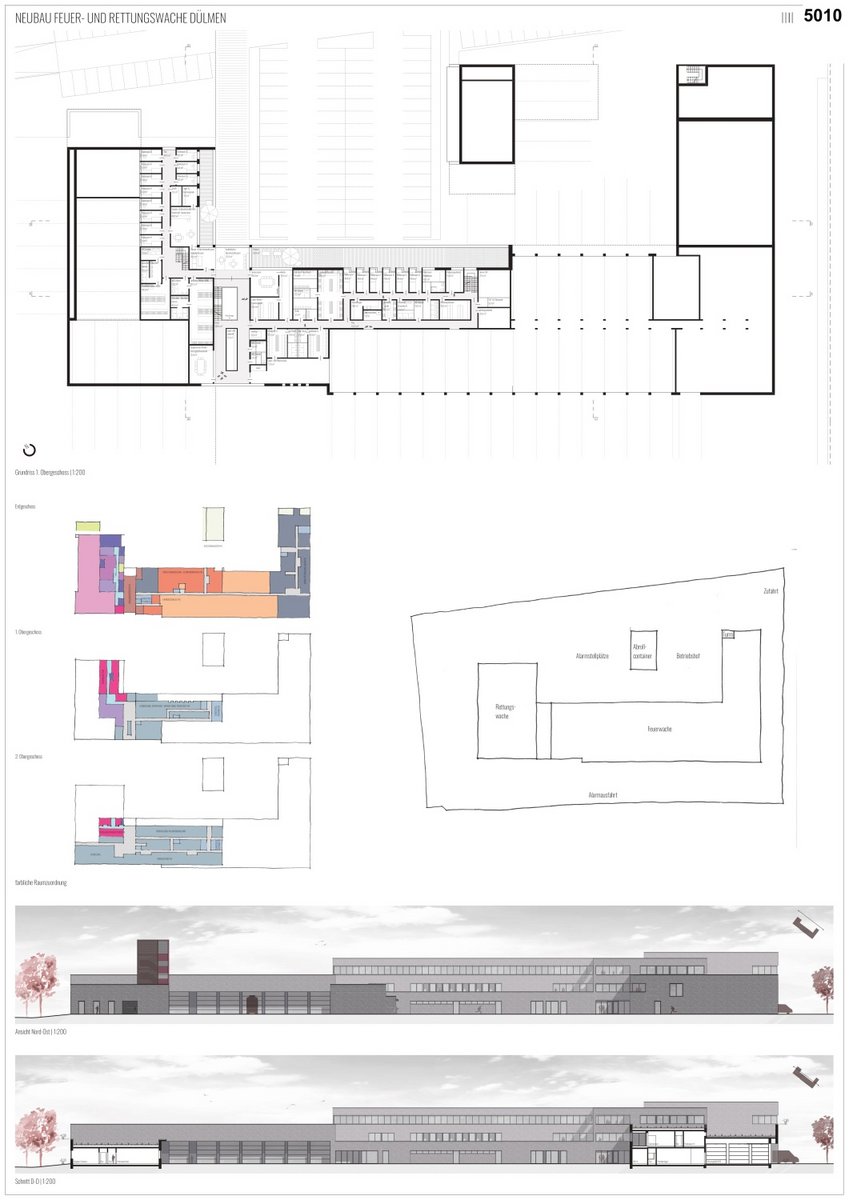
Anerkennung: Pussert Kosch Architekten
Anerkennung: Pussert Kosch Architekten
-
Anerkennung: Horst Architektur
Anerkennung: Horst Architektur
-
Anerkennung: heimspiel architekten Matzken Kampherbeek PartGmbB
Anerkennung: heimspiel architekten Matzken Kampherbeek PartGmbB
-
2. Rundgang: bbp architekten bda
2. Rundgang: bbp architekten bda
-
2. Rundgang: Plansite GmbH & Co Kg
2. Rundgang: Plansite GmbH & Co Kg
-
2. Rundgang: Dohle + Lohse Architekten GmbH
2. Rundgang: Dohle + Lohse Architekten GmbH
-
2. Rundgang: Lorber Paul Architekten GmbH
2. Rundgang: Lorber Paul Architekten GmbH
-
2. Rundgang: Neumann & Heinsdorff Architekten PartmbB
2. Rundgang: Neumann & Heinsdorff Architekten PartmbB
-
2. Rundgang: HIIIS harder stumpfl schramm
2. Rundgang: HIIIS harder stumpfl schramm
-
1. Rundgang: Bayer & Strobel Architekten Partnerschaftsgesellschaft mbB
1. Rundgang: Bayer & Strobel Architekten Partnerschaftsgesellschaft mbB
-
1. Rundgang: Architekten Stein Hemmes Wirtz
1. Rundgang: Architekten Stein Hemmes Wirtz
-
1. Rundgang: puppendahlarchitektur Gmbh
1. Rundgang: puppendahlarchitektur Gmbh
-
1. Rundgang: PASD Feldmeier Wrede Architekten BDA Stadtplaner SRL PartG mbB
1. Rundgang: PASD Feldmeier Wrede Architekten BDA Stadtplaner SRL PartG mbB
-
1. Rundgang: Vervoorts & Schindler Architekten BDA
1. Rundgang: Vervoorts & Schindler Architekten BDA
-
1. Rundgang: kplan AG
1. Rundgang: kplan AG






























































































